6163银河.net163.am

【人居研发·立异产品】家政女王的150迭代立异户型

2020-05-05

2015年底,6163银河.net163.am6163银河.net163.am设计事业十二部举行了一场关于150迭代立异户型的设计竞赛,短短一个月内收到了设计师们的热情加入 。经由半年时间的项目实践打磨,其时的一等奖获奖户型越趋成熟,特此撰文,供行家们指点 。


若是:

有一对八零后匹俦

现在大女儿9岁,小女儿4岁

怙恃很少来住,主要自己带孩子

妈妈需要洗衣做饭,想要更多收纳空间

爸爸需要无意健身、在家看看书

孩子们想要游乐空间

有时间会在家里举行小型PARTY

这样的户型怎样去设计 ?

家务活一直细碎繁多,有没有步伐去整合 ?

孩子自由玩耍能否在清静视线规模内 ?

一家的物品越来越多,究竟怎样去收纳 ?

在现有户型外墙与结构柱基础上

我们迭代立异了150平米户型(如下图)


2

本户型通过以下三点

来平衡家庭中各个角色关于户型的功效需求:

家政

个孩子

种收纳


家政1姐

我们一直把“洗衣做饭”连在一块说

妈妈经常做家务着实很辛勤

想一想,若是这些功效都能勾通,一气呵成

效率不就大大提升了吗 ?

户型微信_页面_05_副本

家政女王生长蹊径之

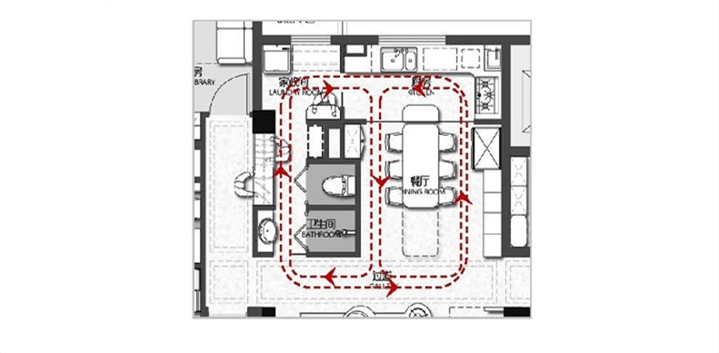
洗衣的流线怎样更顺畅

你有没有抱着一堆脏衣服随处走的履历 ?

或是洗完衣服拿着湿衣服往阳台跑

地上淌了很多多少水还要拿抹布去擦 ?

怎样解决 ?


5


家政女王生长蹊径之

做饭的流线怎样更顺畅


6


2个孩子

孩子的自主空间占了整个户型的1/4

户型微信_页面_09_副本

两个孩子之

挣脱孤苦感

除了通例流线外,增添了完整的孩子动线

更注重孩子的个性生长,自力、自主


8

做饭时也能看到客厅的情景

在客厅休息的同时

孩子的玩乐亦在身边

9


3种收纳

整/清/展

离别脏与乱,“童贞座”看过来

—将杂乱的物品分类整合

—家政收纳&后勤收纳

—展示收纳,体现主人的喜欢与品位

11

成为收纳达人之

三进仪式感/装饰玄关柜/隐藏式收纳间

12

①婴儿车、运动器材、雨伞等户外用品

②坐着换鞋更轻松

③对景展示柜

④收支易服服、拿包包

成为收纳达人之

双孩天地收纳

户型微信_页面_16_副本

①玩具柜

从小明确自己料理玩具

②孩子的衣物有专属区域

再也不怕找不到啦


成为收纳达人之

可变书佃农卧收纳/家政空间收纳

15


①可变书柜

自带下翻式书桌

②墙上挂吸尘器等

③置物柜放餐具

④干货等食物库

⑤小家电区在这里

使用效率更高


网站地图